Používame cookies

Súbory cookie a ďalšie technológie sledovania používame na zlepšenie vášho zážitku z prehliadania našich webových stránok, na to, aby sme vám zobrazovali prispôsobený obsah a cielené reklamy, na analýzu návštevnosti našich webových stránok a na pochopenie toho, odkiaľ naši návštevníci prichádzajú. Viac info

 

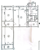
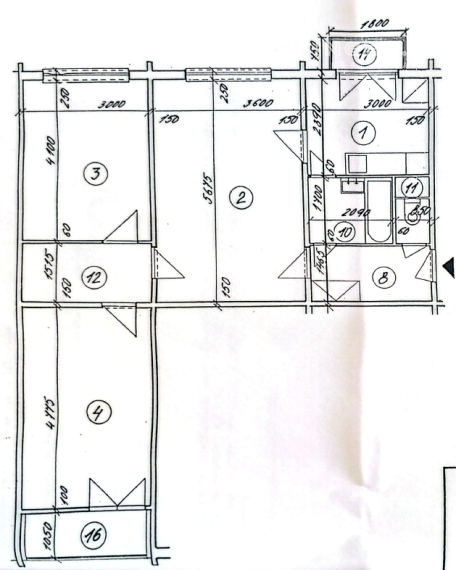
PÔVODNÝ STAV 3 IZBOVÝ BYT BALKÓN + LOGGIA BRATISLAVA RUŽINOV ŠALVIOVÁ ul. TRÁVNIKY

Ulica: Šalviová
Obec: Bratislava-Ružinov
Okres: Bratislava II
Kraj: Bratislavský kraj
Druh: Byty
Typ: Predaj
Typ bytu: 3-izbový byt
Iné:
244 900 €

Popis nehnuteľnosti

Na predaj 3 izbový byt s loggiou a balkónom, výborná lokalita Bratislava – Ružinov časť Trávniky, Šalviová ulica.

Dispozícia:

Byt pozostáva z troch obytných miestností a príslušenstva ktorým je kuchyňa, WC, kúpeľňa, šatník medzi izbami, loggia, balkón, pivnica.

Byt je na 7 / 9 poschodí.

Celková plocha bytu vrátane pivnice, loggie a balkóna  je 73,18 m2, podlahová plocha je 68,90 m2, loggia s výmerou 2,94 m2, balkón s výmerou 1,35 m2, pivnica 1,26 m2.

Stav:

Jedná sa o pôvodný stav, plastové okná vymenené v. r. 2012, stúpačky pôvodný stav.

Mesačné náklady na bývanie:

  • FOÚP – 205,- Eur
  • Elektrina -  27,- Eur
  • Plyn – 17,- Eur

Bytový dom prešiel čiastočnou rekonštrukciou: fasáda + zateplenie, k dispozícii je výťah.

Lokalita:

Perfektná občianská vybavenosť, v pešej dostupnosti MHD na Tomášikovej, materské škôlky, základné školy.

K dispozícii je OC Retro,  Ružinovská nemocnica, známe štrkoviská Rohlík a Štrkovec, park Andreja Hlinku, športový areál na Nevädzovej.

Viac info:

Cena: 244.900 eur

Tel: 0910 310 320

E mail : maduda@ingre.sk

Maklér: Martin Maduda

Vlastnosti

Status:
aktívne
Vlastníctvo:
osobné
Priechodná izba:
áno
Úžitková plocha:
69 m2
Podlahová plocha:
69 m2
Stav:
pôvodný stav
Počet izieb:
3
Energetický certifikát:
žiadne
Energetická náročnosť budovy:
Klasické materiály
Typ výbavy:
čiastočne vybavený
Balkón:
áno
Loggia:
áno
Pivnica:
áno
Verejné vonkajšie parkovanie:
áno
Rok kolaudácie:
1970
Počet poschodí od prízemia vyššie:
9
Poschodie:
7
Celková plocha:
73.2 m2
Plocha balkóna:
1.35 m2
Počet balkónov:
1
Plocha loggie:
3 m2
Počet logií:
1
Pivnica plocha:
1.3 m2
Počet pivníc:
1
Orientácia:
juhovýchod
Inžinierske siete:
áno
Voda:
áno
Elektrika:
áno
Plyn:
áno
Kanalizácia:
áno
Internet:
áno
Optická sieť:
áno
Status:
aktívne
Vlastníctvo:
osobné
Priechodná izba:
áno
Úžitková plocha:
69 m2
Podlahová plocha:
69 m2
Stav:
pôvodný stav
Počet izieb:
3
Energetický certifikát:
žiadne
Energetická náročnosť budovy:
Klasické materiály
Typ výbavy:
čiastočne vybavený
Balkón:
áno
Loggia:
áno
Pivnica:
áno
Verejné vonkajšie parkovanie:
áno
Rok kolaudácie:
1970
Počet poschodí od prízemia vyššie:
9
Poschodie:
7
Celková plocha:
73.2 m2
Plocha balkóna:
1.35 m2
Počet balkónov:
1
Plocha loggie:
3 m2
Počet logií:
1
Pivnica plocha:
1.3 m2
Počet pivníc:
1
Orientácia:
juhovýchod
Inžinierske siete:
áno
Voda:
áno
Elektrika:
áno
Plyn:
áno
Kanalizácia:
áno
Internet:
áno
Optická sieť:
áno

Informatívna úverová kalkulačka

Pozrieť na mape

Maklér

Martin Maduda

Martin Maduda

Maklér

  • Slovensky
  • English
  • Česky

Radi Vám poradíme

Podobné nehnuteľnosti